Baumat Logo
Zum Shop
Merklisten anzeigen
  1. Gesamtsortiment
  2. >
  3. Betonwaren
  4. >
  5. Abwassertechnik
  6. >
  7. Ölhaltige Abwasser
1 / 2

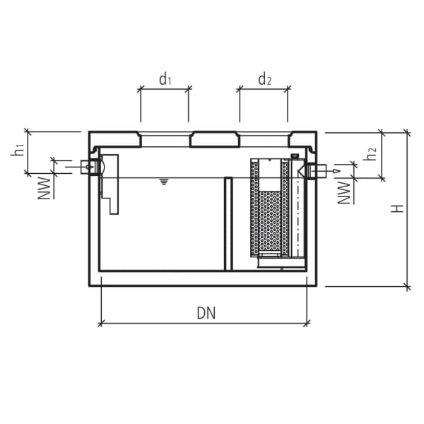
friwa-sep Kompaktanlage SF/MAK Typ 2 NG Abscheider Ø 2500 H 1860 d1 600/600 mm

Mineralölabscheider rund mit integriertem Schlammfang, mit Koaleszenzstufe, inkl. befahrbarer Abdeckplatte D 400, Muffentyp G, exkl. Einsatzdeckel

Spezifikationen

  • Nennweite1 (mm): 200
  • Anwendungsbereich: Abwassertechnik
  • Ø1 (cm): 60
  • Marke: Creabeton
  • Nenngrösse NG (l/s): 15 – 20 / 1
  • Höhe2 (mm) : 550
  • Typ: CK
  • Höhe (mm): 1830
  • Nennweite (mm): 2500
  • Höhe1 (mm): 500
  • Gewicht (kg): 9490

Fehler entdeckt? Wir freuen uns über Ihre Rückmeldung.

friwa-sep Kompaktanlage SF/MAK Typ 2 NG Abscheider Ø 2500 H 1860 d1 600/600 mm
Artikelnr.
10154521
Bezeichnung
friwa-sep Kompaktanlage SF/MAK Typ 2 NG Abscheider Ø 2500 H 1860 d1 600/600 mm
Preis pro
1 Stück
Brutto
Verfügbarkeit
Anzahl